search Поиск по сайту

Набережная Качи в ЖД районе

​Набережная реки Кача в Железнодорожном районе до благоустройства (фотографии можно листать)

Набережная реки Кача во время благоустройства (фотографии можно листать)

Набережная реки Кача после благоустройства (фотографии можно листать)


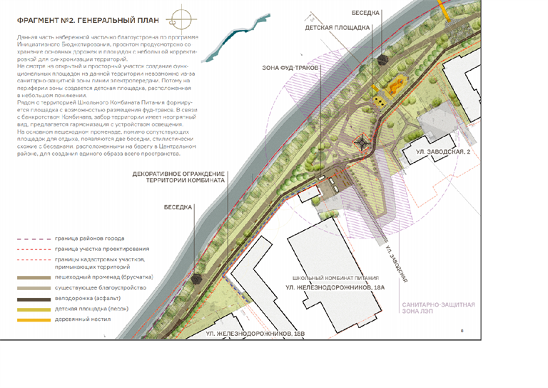
Концепция благоустройства набережной (форэскизы)



Дата публикации (изменения): 06.07.2018 (06.07.2018)
Просмотров за год (всего): 77 (77)